About this custom style home:

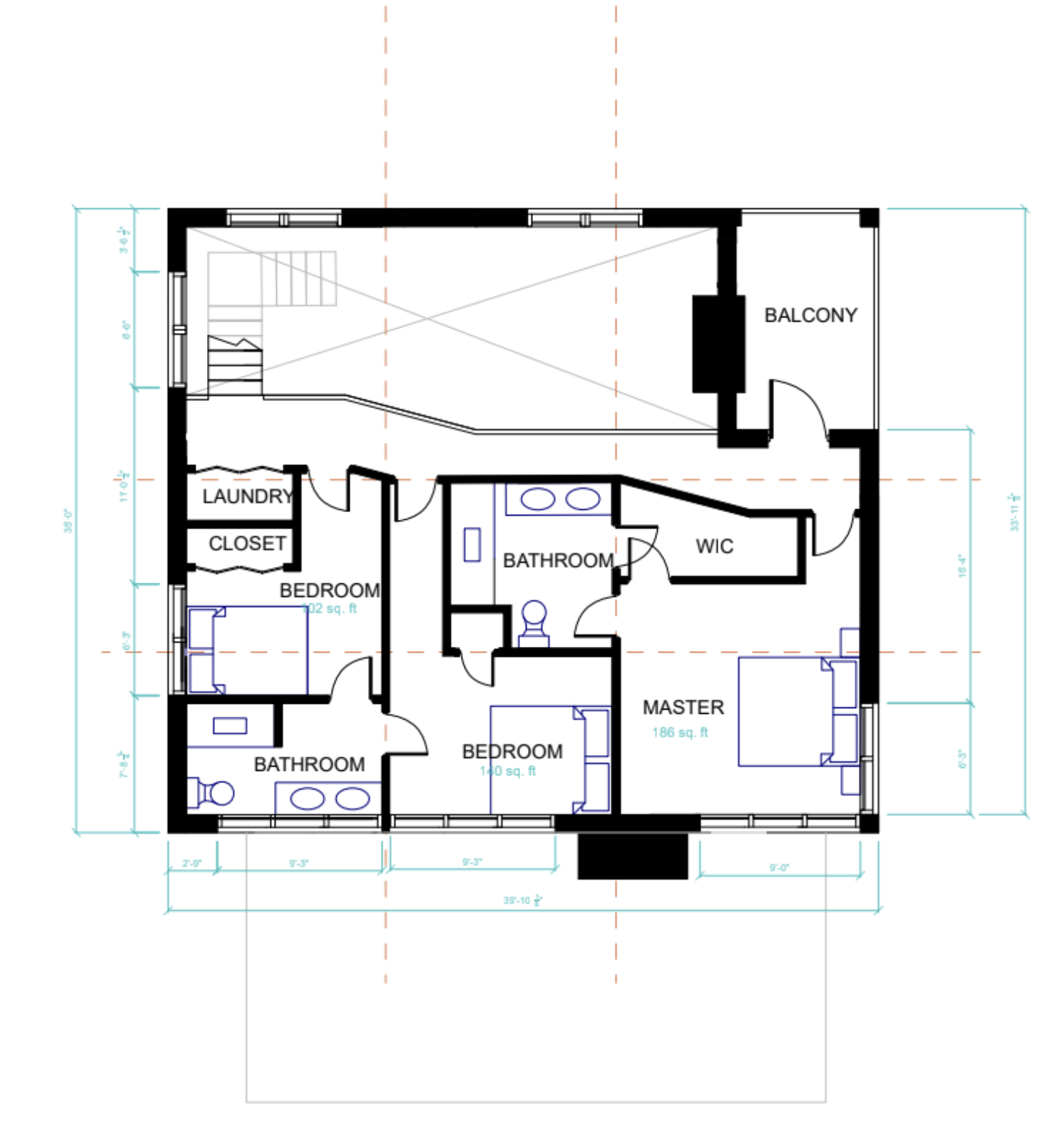
4 beds

3 baths

2,578 sqft

Welcome to your custom style retreat, perfectly located in Decatur!

Welcome to this spacious and charming 4-bedroom, 3-bathroom home nestled on a large 1.34- acre lot in Decatur, GA. With 2,578 sq ft of living space, this home offers a perfect blend of character and comfort, featuring classic and modern details and a flexible floor plan that’s ideal for family living and entertaining. 

One of the standout features of this home is its unbeatable location. You’ll love how easy it is to get around, with I-285 just 2 miles away and I-20 only 3 miles down the road. Commuting to downtown Atlanta is a breeze, taking you less than 20 minutes, whether you’re heading to work or out for a night in the city.  

When you're not on the go, you'll find plenty of conveniences close by. Grab a coffee or do some shopping at the South DeKalb Mall, just a short drive away, or explore local restaurants and shops nearby. For those who enjoy spending time outdoors, South DeKalb Park is right around the corner, offering walking trails and green space to relax or get active.

With all these incredible features and its peaceful, yet well-connected setting, this haven offers the perfect mix of space, convenience, and comfort. This home is ready for you to move in and make it your own. This home will be ready by Spring 2025.

Contact Us

Interested in learning more about this property? Fill out the contact form and we will be in touch shortly. We can’t wait to hear from you!